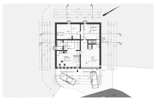
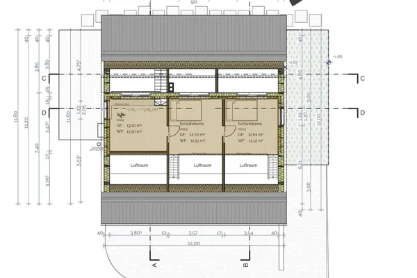
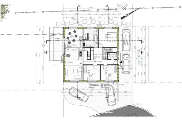
Neubau eines Einfamilienhauses mit Einliegerwohnung in Strohbauweise
Ort: Leichlingen (Rheinland)
Zeitraum: 2021 – 2023
Bauweise: Strohballenwände DD34-System von LORENZ, Innen Lehmputz und Dielenböden, Außen Kalkputz und Steinimitat aus Kalkputz. Kellergeschoss Massivbau, Kalksandstein und WU-Stahlbeton
Haustechnik: Luftwärmepumpe, Fußbodenheizung














