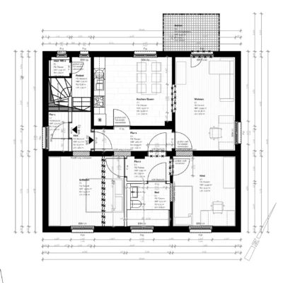
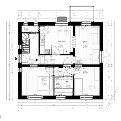
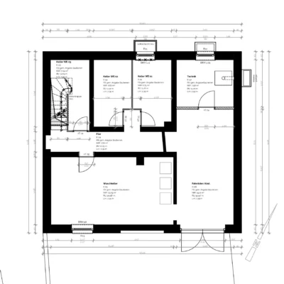
Durch den Einbau von Wohnungsabschlusswänden werden die Wohneinheiten voneinander getrennt. Die vorhandene Holztreppe wird brandschutztechnisch ertüchtigt. Um allen Wohneinheiten einen Aufenthalt im Freien zu ermöglichen, bekommt das Dachgeschoss eine Loggia und das Obergeschoss einen Balkon.




13 Comments